Contattaci
+39 338.1098553
+39 0142.55155
P. Martiri della Libertà, 30/D
15033 Casale Monferrato AL
9:00-12:00 / 15:00-19:00
Lunedì-Venerdì (Sabato 9:00-12:00)
Toggle navigation
Home
Chi siamo
Immobili in Vendita
Immobili in Affitto
Contattaci
Appartamento
Casale Monferrato (AL)
125.000,00
Rif. 235
Sei interessato?
Confermo di aver preso visione dell'informativa sul trattamento dei dati
Privacy Policy
Contattaci
In Vendita
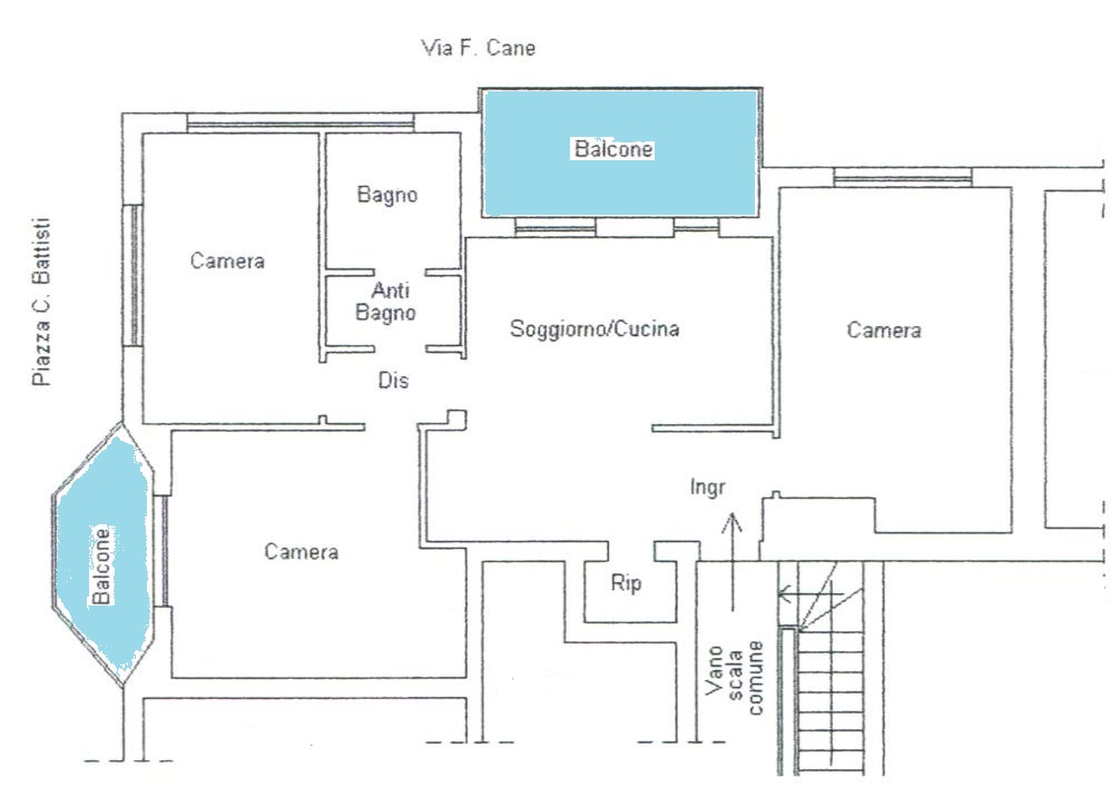
PIAZZA CESARE BATTISTI Al quinto piano con ascensore, APPARTAMENTO di ingresso, cucina/tinello, soggiorno, 2 camere da letto, bagno con antibagno, ripostiglio e 2 balconi. Cantina al piano interrato.
DETTAGLI
Vani
4
Superficie
105 m²
Riscaldamento
Centralizzato
Condizioni
Buono stato
Piano
5 di N.D.
Camere
2
Bagni
1
Costruito nel
N.D.
CARATTERISTICHE
Cucina
Abitabile
Balconi
2
Terrazzo
No
Box
No
Giardino Privato
No
Cantina
Sì
Solaio
No
Condizionatori
No
Ascensore
Sì
Ammobiliato
No
ULTERIORI INFORMAZIONI
Spese Condominiali
N.D.
Spese Riscaldamento
N.D.
Classe Energetica
"E" 174.93